Nobeoka City, Shimomiiwa Town Two-story building 6DK

Nobeoka City, Shimomiiwa Town
Nobeoka City, Shimomiiwa Town Two-story building 6DK
1 / 3

Property Details

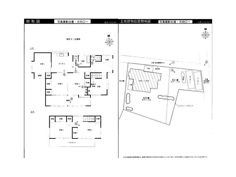
Layout 6DK
Land Area 647.93m²
Building Area 140.10m²
Construction Date 9 minutes on foot from Tobu Sano Line "Sano City" Station
Transportation [Bus] Miyazaki Kotsu "Miiwa Entrance" bus stop 80m walk
Property Type Used single-family home
Prefecture Miyazaki
Source athome

Description

-

Similar Properties in Miyazaki

Nishito-shi, Oaza Hiragun, flat roof, 4LDK

600,000 yen

$3,840

Nishito-shi, Oaza Hiragun, flat roof, 4LDK 600,000 yen

West City Oaza Hira-gun

A used house with many rooms, 9DK♪

$22,393

A used house with many rooms, 9DK♪

Yasu Town, Miyazaki Prefecture, Miyakonojo City

Kushima-city, Oaza-Naru (Hyuga-Otsuka station) Single-story building, 3LDK

1,000,000 yen

$6,400

Kushima-city, Oaza-Naru (Hyuga-Otsuka station) Single-story building, 3LDK 1,000,000 yen

Kushima City, Ooaza Naru

Miyakonojo City, Yamada Town Yamada (Mankezuka Station) Single-story building 6DK

$40,703

Miyakonojo City, Yamada Town Yamada (Mankezuka Station) Single-story building 6DK

Miyakonojo City Yamada Town Yamada

Price

$51,200

0 people like this property

Get Weekly Picks

Hand-picked akiya listings in Miyazaki, delivered free every week.