Nishi-Odori 2-chome, Yonezawa City

Nishi-Odori 2-chome, Yonezawa City

Property Details

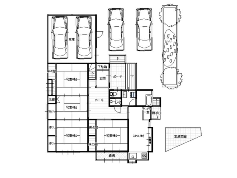
Layout 7SDK
Land Area 257.81m²
Building Area 220.83m²
Construction Date October 1989 (36 years and 5 months old)
Transportation Built in January 1929 (97 years and 2 months old)
Property Type Used single-family home
Prefecture Yamagata
Source athome

Similar Properties in Yamagata

Nishiochi County, Shirataka Town, Oaza Ayukai (Arato Station) 2-story building 6DK

$12,800

Nishiochi County, Shirataka Town, Oaza Ayukai (Arato Station) 2-story building 6DK

Nishitagawa District, Shirataka Town, Oaza Ayugai

Recommended for families raising children, with a 6-minute walk to the elementary school and a 23-minute walk to the junior high school.

$56,320

Recommended for families raising children, with a 6-minute walk to the elementary school and a 23-minute walk to the junior high school.

Oaza-Okubo Kou, Murayama City, Yamagata Prefecture

Vacant house】 ☆Remodeling by yourself, DIY is recommended for those who are interested in.

$56,960

Vacant house】 ☆Remodeling by yourself, DIY is recommended for those who are interested in.

3-1-24 Higashi Kunomoto, Tendo City, Yamagata Prefecture

Sakata City, Hikarioka 5-chome (Sakata Station) Single-story building 3K

$31,936

Sakata City, Hikarioka 5-chome (Sakata Station) Single-story building 3K

Sakata City, Hikarioka 5-chome

Price

$40,320

0 people like this property

Get Weekly Picks

Hand-picked akiya listings in Yamagata, delivered free every week.