Nikaho City, Nakatsugata, Tori no Umi (Nakatsugata Station) 2-story building 6DK

Nikaho City, Nakatsugata, Tori no Umi

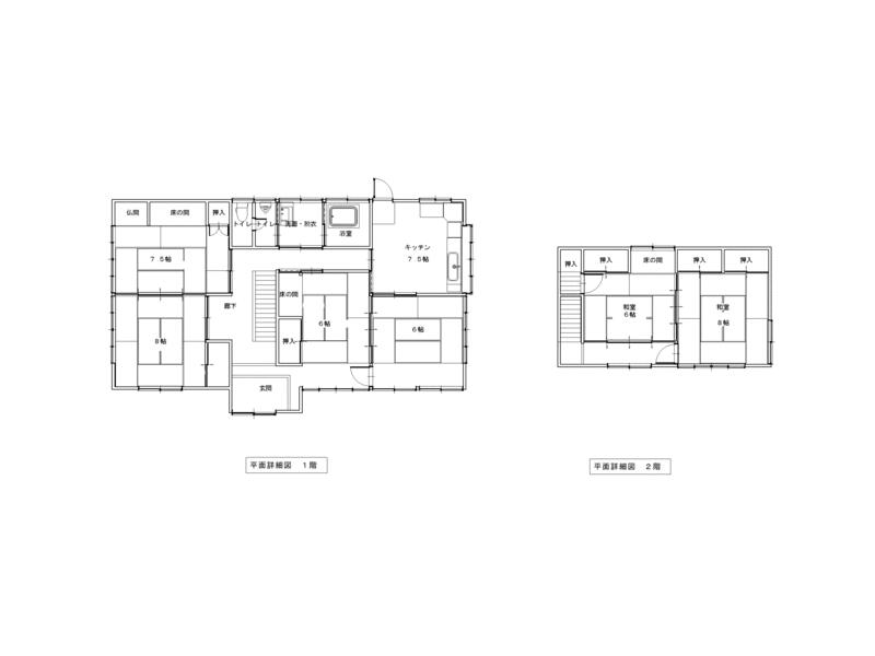
Property Details

Layout 6DK
Land Area 242.44m²
Building Area 120.07m²
Construction Date June 1976 (49 years and 9 months old)
Transportation 25 minutes on foot from JR Uetsu Main Line "Nakatsugata" Station
Property Type Used single-family home
Prefecture Akita
Source athome

Similar Properties in Akita

2F 4SLDK, Aza Futatsumori, Shakanai, Odate-shi, Hokkaido

10,000 yen

$64

2F 4SLDK, Aza Futatsumori, Shakanai, Odate-shi, Hokkaido 10,000 yen

Futatsumori, Shakanai, Odate City

Neshikado-cho, Odate-shi (Higashiodate Sta.) Single-story building, 3LDK

10,000 yen

$64

Neshikado-cho, Odate-shi (Higashiodate Sta.) Single-story building, 3LDK 10,000 yen

Neshikado-cho, Odate City

Aza Ohashi, Daigo, Hiraga-cho, Yokote-shi, Kanagawa (Daigo station) 2F 7K

10,000 yen

$64

Aza Ohashi, Daigo, Hiraga-cho, Yokote-shi, Kanagawa (Daigo station) 2F 7K 10,000 yen

Ohashi, Daigo, Hiraga-cho, Yokote City

Aza Furukawatari, Ichibuchi, Noshiro city (Higashinoshiro station) Single-story house, 7K

0.1million yen

$64

Aza Furukawatari, Ichibuchi, Noshiro city (Higashinoshiro station) Single-story house, 7K 0.1million yen

Furukawabuchi, Noshiro City, Noshiro

Price

$16,000

0 people like this property

Get Weekly Picks

Hand-picked akiya listings in Akita, delivered free every week.