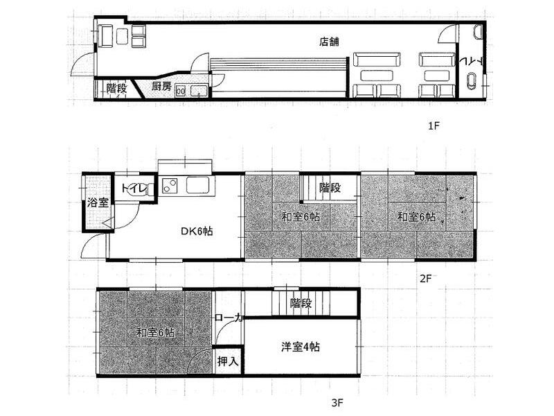
Nagasaki City, Isomichicho, 3-story building, 4DK

Nagasaki City, Isomichi Town

Property Details

Layout 4DK
Land Area 58.29m²
Building Area 58.84m²
Construction Date November 1977 (48 years and 4 months old)
Transportation [Bus] Isomichi, 2-minute walk
Property Type Used single-family home
Prefecture Nagasaki
Source athome

Similar Properties in Nagasaki

Hinokawa Elementary and Junior High School area! A great location for families with children, just a 3-minute drive to Lala Coop Hino

$61,681

Hinokawa Elementary and Junior High School area! A great location for families with children, just a 3-minute drive to Lala Coop Hino

Nagasaki Prefecture, Sasebo City, Seiwadai Town

Nagasaki City, Showa 2-chome (Showa-machi-dori Station) 2-story building 5DK

$62

Nagasaki City, Showa 2-chome (Showa-machi-dori Station) 2-story building 5DK

Nagasaki City, Showa 2-chome

Used single-family home in Minami Shimabara City

$61,661

Used single-family home in Minami Shimabara City

Bus, Fujihara, 15 minutes walk, 2593 Ariake Town, Minami Shimabara City, Nagasaki Prefecture

■Price has been further revised!! Just off the national road! 6 minutes walk from Mikawachi Station♪

$24,823

■Price has been further revised!! Just off the national road! 6 minutes walk from Mikawachi Station♪

Shiohishimachi, Sasebo City, Nagasaki Prefecture

Price

$32,000

0 people like this property

Get Weekly Picks

Hand-picked akiya listings in Nagasaki, delivered free every week.