Minamikyushu City, Kawabe-cho Tabeda, single-story, 5DK

Minamikyushu City, Kawabe-cho Tabeda

Property Details

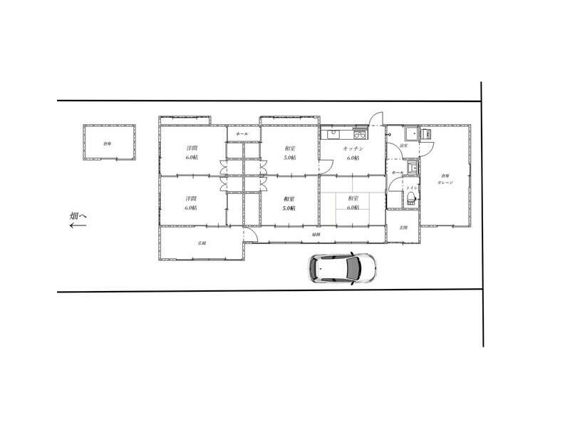
Layout 5DK
Land Area 661.72m²
Building Area 132.29m²
Construction Date January 1973 (53 years and 3 months old)
Transportation [Bus] 2-minute walk from Tabeda Nakadori
Property Type Used single-family home
Prefecture Kagoshima
Source athome

Similar Properties in Kagoshima

Kirishima City Kirishima Taguchi (Kirishima Jingu Station) Single-story building 3DK

$18,560

Kirishima City Kirishima Taguchi (Kirishima Jingu Station) Single-story building 3DK

Kirishima City, Kirishima Taguchi

A spacious 387 tsubo old folk house with a warehouse, surrounded by nature for a slow life!

$16,000

A spacious 387 tsubo old folk house with a warehouse, surrounded by nature for a slow life!

4692 Naoki Town, Kagoshima City, Kagoshima Prefecture

Kirishima City, Kirishima Taguchi, single-story building, 4LDK

$28,800

Kirishima City, Kirishima Taguchi, single-story building, 4LDK

Kirishima City, Kirishima Taguchi

Sueyoshi Town Minamino Go 2,480,000 yen

$15,872

Sueyoshi Town Minamino Go 2,480,000 yen

Sueyoshi Town Minamino Go, So City, Kagoshima Prefecture

Price

$31,705

0 people like this property

Get Weekly Picks

Hand-picked akiya listings in Kagoshima, delivered free every week.