Ishinomaki City, Momo Town, Jounai, Nishimine (Rikuzen Toyosato Station) 2-story 6K

Ishinomaki City, Momo Town, Jounai, Nishimine

Property Details

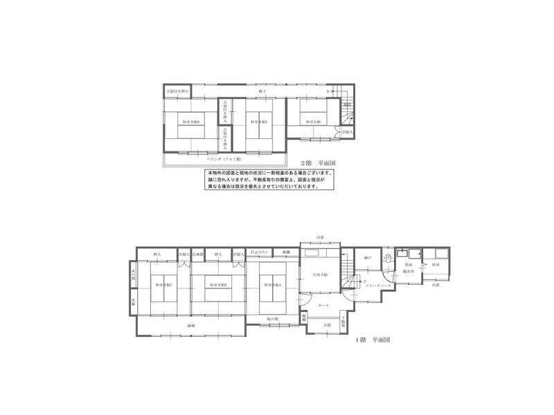
Layout 6K
Land Area 199.55m²
Building Area 151.60m²
Construction Date January 1981 (45 years and 4 months old)
Transportation 43 minutes on foot from JR Kesennuma Line "Rikuzen Toyosato" Station
Property Type Used single-family home
Prefecture Miyagi
Source athome

Similar Properties in Miyagi

Shiroishi-shi, Fukuoka Kuramoto Aza Jinba 2F 6DK

3.5 million yen

$22,400

Shiroishi-shi, Fukuoka Kuramoto Aza Jinba 2F 6DK 3.5 million yen

Aza Jimba, Fukuoka Kuramoto, Shiroishi City

3-chome, Izumi-cho, Ishinomaki-shi (Ishinomaki Sta.) 2F 6K

1.5 million yen

$9,600

3-chome, Izumi-cho, Ishinomaki-shi (Ishinomaki Sta.) 2F 6K 1.5 million yen

3 Izumi-cho, Ishinomaki-shi

Ishinomaki City, Teizan 2-chome (Rikuzen-Yamashita Station) 2-story building 5DK

$18,789

Ishinomaki City, Teizan 2-chome (Rikuzen-Yamashita Station) 2-story building 5DK

Teizan 2-chome, Ishinomaki City

Ishinomaki-shi, Tashirohama, Aza Nitoda (Ishinomaki Sta.) 2F 5DK

2F 5DK 1,160,000 yen

$7,424

Ishinomaki-shi, Tashirohama, Aza Nitoda (Ishinomaki Sta.) 2F 5DK 2F 5DK 1,160,000 yen

Nitoda, Tashirohama, Ishinomaki City

Price

$17,631

0 people like this property

Get Weekly Picks

Hand-picked akiya listings in Miyagi, delivered free every week.