Hikosaku Tsutsumi-gai, Machikata-cho, Aisai City (Machikata Station) 2-story building 4DK

10 minutes on foot from "Machikata" Station on the Meitetsu Bisai Line

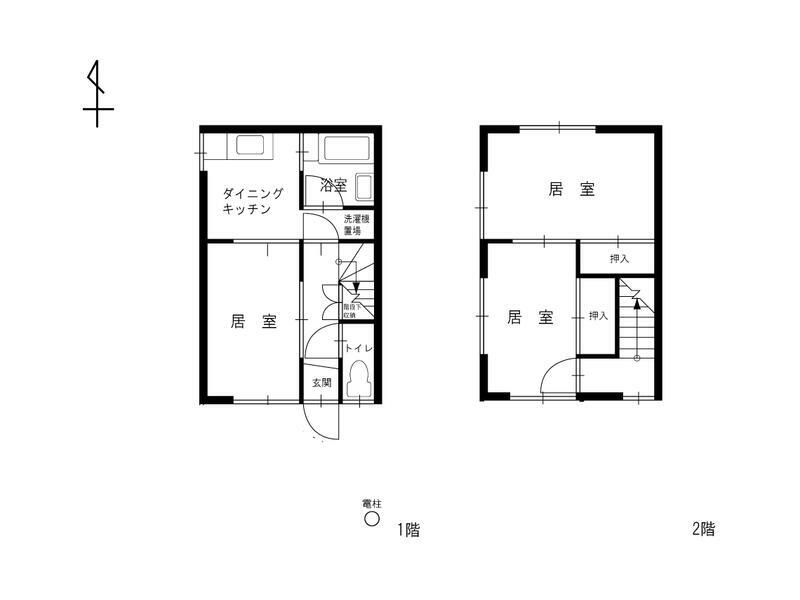
Property Details

Layout 3DK
Land Area 44.61m²
Building Area 50.56m²
Construction Date February 1975 (51 years and 1 month old)
Transportation Hikosaku Tsutsumi-gai, Machikata-cho, Aisai City
Property Type Used single-family home
Prefecture Aichi
Source athome

Similar Properties in Aichi

Minami Chita Town, Chita District, Oaza Toyohama, Takahama Valley, 2-story, 8K

$3,136

Minami Chita Town, Chita District, Oaza Toyohama, Takahama Valley, 2-story, 8K

Minami Chita Town, Chita District, Oaza Toyohama, Takahama Valley

6-chome Kannoncho, Minami Ward, Nagoya City (Doutoku Station) 2-story 2DK

$31,885

6-chome Kannoncho, Minami Ward, Nagoya City (Doutoku Station) 2-story 2DK

6-chome Kannoncho, Minami Ward, Nagoya City

Seto City, Minaminakanokiricho (Owari Seto Station) 2-story building 6LDK

$16,977

Seto City, Minaminakanokiricho (Owari Seto Station) 2-story building 6LDK

Minaminakanokiricho, Seto City

5-chome, Hōjin, Minato Ward, Nagoya City (Inanoh Station) 2-story 4DK

$40,703

5-chome, Hōjin, Minato Ward, Nagoya City (Inanoh Station) 2-story 4DK

5-chome, Hōjin, Minato Ward, Nagoya City

Price

$23,616

0 people like this property

Get Weekly Picks

Hand-picked akiya listings in Aichi, delivered free every week.