Akaiwa City, Wada, single-story 5LDK

Akaiwa City, Wada

Property Details

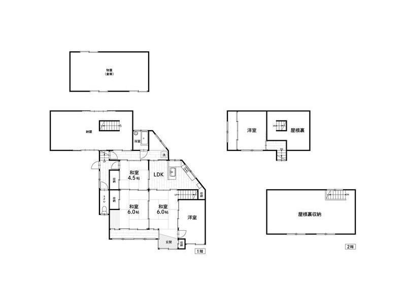
Layout 5LDK
Land Area 376.35m²
Building Area 103.95m²
Construction Date January 1930 (96 years and 2 months old)
Transportation [Bus] Uno Bus, Sanyo Danchi Nishi 1, 130m on foot
Property Type Used single-family home
Prefecture Okayama
Source athome

Similar Properties in Okayama

Konan-cho, Koka-shi, Koka 1-chome (Konan Sta.) 2F 5LDK

5.8 million yen

$1,920

Konan-cho, Koka-shi, Koka 1-chome (Konan Sta.) 2F 5LDK 5.8 million yen

1, Koka Honmachi, Konan-cho, Koka-shi, Koka

Tanaka, Azumigawa-cho, Takashima-shi, Takashima (Azumigawa station) 2F 3LDK

5.8 million yen

$3,072

Tanaka, Azumigawa-cho, Takashima-shi, Takashima (Azumigawa station) 2F 3LDK 5.8 million yen

2F 10DK in Kawage, Kohoku-cho, Nagahama-shi, Kanagawa 5.8 million yen

Kawage, Kohoku-cho, Nagahama City

$3,072

Kawage, Kohoku-cho, Nagahama City

(Omihachiman Sta.) Single-story building, 3DK 5.8 million yen

Kurashiki City, Kojima Yanagidacho (Kaminocho Station), 1 floor above ground and 1 basement floor, 4DK

$35,200

Kurashiki City, Kojima Yanagidacho (Kaminocho Station), 1 floor above ground and 1 basement floor, 4DK

Kojima Yanagida Town, Kurashiki City

Price

$12,160

0 people like this property

Get Weekly Picks

Hand-picked akiya listings in Okayama, delivered free every week.