2-story building, 7DK, Kuwabata, Isawa City (Maesawa Station)

Kuwabata, Isawa City

Property Details

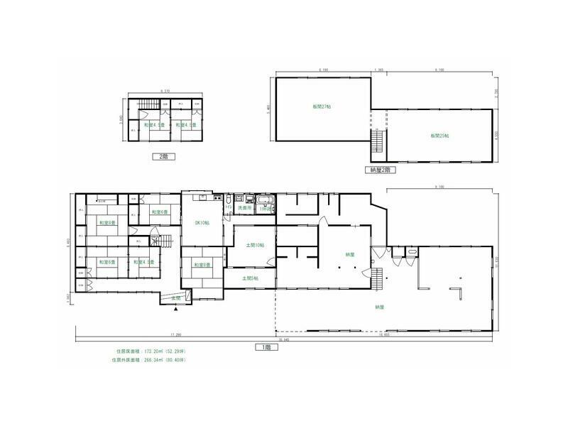
Layout 7DK
Land Area 1,470.76m²
Building Area 445.09m²
Construction Date April 1972 (53 years and 11 months old)
Transportation 1,500 meters on foot from JR Tohoku Main Line "Maesawa" Station
Property Type 1.8 million yen
Prefecture Iwate
Source athome

Description

Vacant house bank registered property has been vacant since October 2023. The separate storage shed has roof damage. The building is unregistered, and there is another barn. Part of the building is on agricultural land (field). City water supply. It has a simple flush toilet (it is outside the public sewer area. There is a subsidy system if a septic tank is installed). *Of the land 1,470.76㎡, the field (68-7) 196.00㎡ requires a 3rd article application as a small-scale agricultural land. Since it comes with agricultural land, purchase of only the residential land is not possible. If acquiring agricultural land, procedures with the Agricultural Committee are necessary. Furniture and household goods are included, but the owner will dispose of them before delivery.

Similar Properties in Iwate

Kawajiri 41 Chiwari, Nishi Waga Town, Waga County (Hotto Yuda Station) 2-story 4SLDK

$30,720

Kawajiri 41 Chiwari, Nishi Waga Town, Waga County (Hotto Yuda Station) 2-story 4SLDK

Kawajiri 41 Chiwari, Nishi Waga Town, Waga County

Orikabe 1 Chome, Murone Town, Ichinoseki City (Orikabe Station) 2-story 7DK

$31,360

Orikabe 1 Chome, Murone Town, Ichinoseki City (Orikabe Station) 2-story 7DK

Orikabe 1 Chome, Murone Town, Ichinoseki City

13 minutes on foot from Iwate Galaxy Railway "Iwate Numakunai" Station

$32,000

13 minutes on foot from Iwate Galaxy Railway "Iwate Numakunai" Station

5 million yen

Mitsuwari 3 Chome, Morioka City (Yamagishi Station) 2-story 6DK

$30,720

Mitsuwari 3 Chome, Morioka City (Yamagishi Station) 2-story 6DK

Mitsuwari 3 Chome, Morioka City

Price

$11,520

0 people like this property

Get Weekly Picks

Hand-picked akiya listings in Iwate, delivered free every week.