宇陀市 榛原萩原 (榛原駅 ) 2階建 5SDK 180万円

宇陀市榛原萩原

Property Details

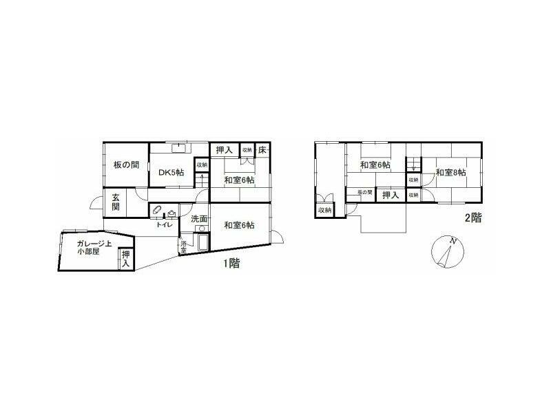
Layout 5SDK
Land Area 112.66m²
Building Area 88.56m²
Construction Date 1970年9月(築55年8ヶ月)
Transportation 近鉄大阪線 「榛原」駅 徒歩10分
Property Type Used single-family home
Prefecture Nara
Source athome

Similar Properties in Nara

3,500,000 yen, Hourai 2 (Nikaido Station)

$22,029

3,500,000 yen, Hourai 2 (Nikaido Station)

Hourai 2, Nara City, Nara Prefecture

Koizumi-cho, Yamato Koriyama City (Yamato Koizumi Station) 2-story building 5DK

$21,889

Koizumi-cho, Yamato Koriyama City (Yamato Koizumi Station) 2-story building 5DK

Yamato Koriyama City, Koizumi Town

【積水ハウス施工】スムストック住宅販売士が適正評価

$30,057

【積水ハウス施工】スムストック住宅販売士が適正評価

奈良県宇陀市榛原ひのき坂1

Kashihara City, Shijō Town (Yagi Nishi-guchi Station), 2 floors, 5DK

$37,120

Kashihara City, Shijō Town (Yagi Nishi-guchi Station), 2 floors, 5DK

Kashihara City, Shijō Town

Price

$11,347

0 people like this property

Get Weekly Picks

Hand-picked akiya listings in Nara, delivered free every week.